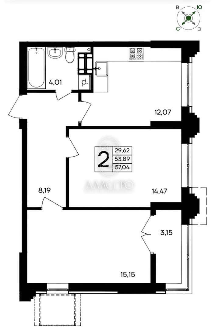
2-к квартира, 57 м², 8/9 эт.

Севастополь, Котляревского, 4

11 978 400 руб.

210 148 руб./м²

Описание Объект №1223

Предлагается к продаже 2 комнатная квартира ЖК Семисчастье — это место, где каждое мгновение имеет значение. Первый проект подобного масштаба в Севастополе: Амбициозный проект комплексного развития территории в районе 7 километра Балаклавского шоссе. Это район, вдохновляющий своим размахом. 70 гектаров территории. 7 000 квартир комфорт-класса. 54 многоквартирных дома и 41 таунхаус. 3 жилых квартала в 1 этапе строительства — 9 домов переменной этажности. Пространство для жизни с комфортом и смыслом: «Семисчастье» — полноценный район, созданный для жизни, развития и отдыха. 4 современных детских сада и школа. Поликлиника. Торговый центр. Физкультурно- оздоровительный комплекс. Коммерческие помещения для бизнеса. Аптеки, магазины и любимые кафе — в шаговой доступности. Комфорт, продуманный до мелочей. Безусловные преимущества: Приватные дворы без машин. Соседский центр. Дизайнерские холлы. Сквозные парадные и бесшумные лифты. Ландшафтное озеленение с автополивом. Современные детские игровые площадки. Велодорожки, удобные парковки. Пространства для семейного отдыха. Безбарьерная среда для маломобильных жителей. Кладовые для сезонных вещей. Собственная котельная- энергоэффективность и надежность. Уникальные общественные пространства: Пешеходный бульвар с зонами отдыха. Просторная городская площадь. Зеленый сквер и места для прогулок. 35% территории — озеленение. Проект представлен на Всероссийской «зелёной» конференции как образцовый пример устойчивого градостроительства. Современная архитектура. Керамогранитные вентилируемые фасады- долговечность и терморегуляция. Архитектурная подсветка фасадов. Выразительный облик комплекса. Широкий выбор квартир, созданных для самых разных предпочтений и образа жизни: Студии от 31,9 до 37,50 м 2. 1- комнатные — от 33,7 до 58,3 м². 2- комнатные — от 57 до 79 м². 3- комнатные — от 78 до 140 м². 4- комнатные — 118 м². Дополняет разнообразие планировок евроформат, который сочетает современные решения с эргономикой. Квартиры сдаются в предчистовой отделке White Box — Вам остается только внести финальные штрихи по своему вкусу. Каждая квартира с застеклённой лоджией. Уникальные решения: Верхние этажи — с открытыми террасами. Первый этаж- двухуровневые квартиры с собственным выходом. Транспортная доступность. Расстояние на автомобиле до важнейших точек Севастополя: Набережная Балаклавы — 10 минут. Центр Севастополя и Новый Херсонес — 20 минут. Ж/Д и автовокзалы — 15 минут. ТЦ «Sea Mall» — 5 минут. ТЦ «Муссон» — 20 минут. Доступна ипотека в банках: Втб, Сбер, генбанк, АБ Россия. Все ипотеки по гос. Программам. Рассрочка от застройщика: ПВ 50%, остальная сумма выплачивается равными платежами ежемесячно или ежеквартально до 1 квартала 2028. Сдача объекта — 4 кв. 2028 года. Застройщик ООО " СЗ "Корабельный" Инн 9201527876, адрес г. Севастополь, ул. Хрусталева, д. 84 каб.7. Проектная декларация размещена на сайте Еисжс https: //наш. Дом. Рф/.

  • Материал дома :

  • Мусоропровод :

  • Этаж :

  • Кол-во комнат :

  • Жилая площадь :

  • Тип :

  • Ремонт :

  • Монолитный

  • Нет

  • 8

  • 2

  • 29,6 м²

  • Квартира

  • Под отделку

  • Лифт :

  • Охрана/Консьерж :

  • Этажность :

  • Площадь :

  • Площадь кухни :

  • Балкон :

  • Отопление :

  • Нет лифта

  • Нет

  • 9

  • 57 м²

  • 12 м²

  • Лоджия

  • Нет

Карта Котляревского, 4

Написать специалисту

Похожая недвижимость

2-к квартира, 59,6 м², 3/5 эт.
  • Продажа
12 000 000 руб.

Квартира

2-к квартира, 59,6 м², 3/5 эт.

Севастополь, улица Хрусталёва, 137

1-к квартира, 66,6 м², 1/12 эт.
  • Продажа
13 721 660 руб.

Квартира

1-к квартира, 66,6 м², 1/12 эт.

Севастополь, проспект Генерала Острякова, 241

2-к квартира, 53,4 м², 8/12 эт.
  • Продажа
11 214 172 руб.

Квартира

2-к квартира, 53,4 м², 8/12 эт.

Севастополь, проспект Генерала Острякова, 241

2-к квартира, 69,5 м², 5/5 эт.
  • Продажа
12 000 000 руб.

Квартира

2-к квартира, 69,5 м², 5/5 эт.

Севастополь, улица Хрусталёва, 137